Share with a friend

Please check you have entered all details correctly:

Options

40 Meters North West Of No.65 Stewarts Road Annalong, BT34 4UE

Price On Application

Key Information

Address 40 Meters North West Of No.65 Stewarts Road Annalong, BT34 4UE
Price Price On Application
Land type Building Site (with FPP)
Size 2 acres
Planning Full Planning Permission
Status For sale

Additional Information

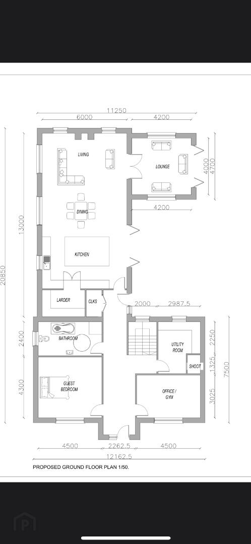
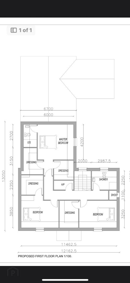
2.2 Acre site for sale

Exciting opportunity new to the market. This amazing 2.2 acre site located in the picturesque country side on the Stewarts Road just outside Annalong Village where you can avail of all local amenities. The home is also within walking distance to the Longstone.  The site benefits from full planning permission for a large beautiful contemporary dwelling and detached garage. The planning consists of a ground floor with bedroom four, office/study, open plan extensive kitchen with the bonus of a walk-in larder, dining and living room with bi-folding doors, lounge/sunroom also with bi-folding doors, utility benefiting from a laundry chute, bathroom and cloak room. The first floor comprises of three double bedrooms all with generous size dressing rooms and master with ensuite, main shower room and double hot-press. Externally the site contains a well-maintained 60ft x 30ft steel structural shed.

Planning Reference: LA07/2023/3086/F